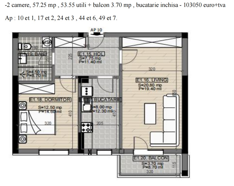
Descriere
-
Descriere
:
MSK INTERIOR & REAL ESTATE propune la vanzare 14 tipologii de apartamente de 2, 3 si 4 camere cu suprafete intre 43.70 si 119.30 mp cu comision 0 pentru cumparator si consultanta ulterioara gratuita pentru designul de interior !
Studio , 2 camere disponibile in 8 tipologii , 3 camere disponibile in 4 tipologii si 4 camere .
Recomandam acest proiect prin calitatea constructiei si a finisajelor finale :
-constructie 2025 cu termen de receptie estimat aprilie 2026
- structura beton armat, ziduri interior /exterior ITONG ,izolatie polistiren expandat de 10 cm ,
-fatade partial ventilate cu LED-uri, balustrade interioare din sticla ,
- 2 lifturi de ultima generatie ,
- tamplarie Salmander,usi de intrare antiefractie cu broasca inchidere multimpunct cu ciocuri si bolturi ,
- incalzire in pardoseala,
-fiecare apartament este dotat cu centrala proprie ,
-kit aer conditionat in fiecare apartament,
- finisaje interioare premium ,
- baile sunt echipate cu WC suspendat, dusuri Walk-in cu sticla securizata,
-acces securizat: Sistemul de acces este bine protejat cu bariere automate si videointerfon, oferind un nivel ridicat de securitate si control pentru rezidenti.
Arată toată descrierea